1、前言
萊蕪礦業有限公司選礦廠建于七十年代,年處理原礦能力為40萬t,為中型選礦廠。選礦工藝設備均為七十年代設計制造的。隨著生產規模的逐年擴大和選礦技術的不斷發展,老工藝設備不能適應發展的需要。因此,自1998年以來對老工藝設備不斷進行改造,大筒徑磁選機的應用成功,給選礦的生產經營增加了經濟效益,同時,進一步促進了選礦生產技術的發展和提高。
2、現狀分析
2.1、設備方面
由于近幾年選礦生產任務的加大,原礦處理能力由原來的40萬t/a,提高到現在的50萬t/a。磨機臺時處理量由原來的28t/h提高到38t/h,再加上工藝中細篩的返回量,原一段粗選磁選機φ750mm×1800mm的處理能力遠遠不能滿足選礦生產需要,隨之暴露出很多問題,給正常生產帶來較大困難。主機問題有:①設備老化,處理能力低;②分選指標差,尾礦品位高,回收率低。③經常溢礦,影響了車間的文明生產,增加了工人的勞動強度;④電機負荷大,電機燒壞事故頻繁,造成停車時間長,嚴重影響生產任務的完成。因此,改造一段粗選,提高其處理能力,改善作業條件和選別指標,是一項十分迫切的任務。
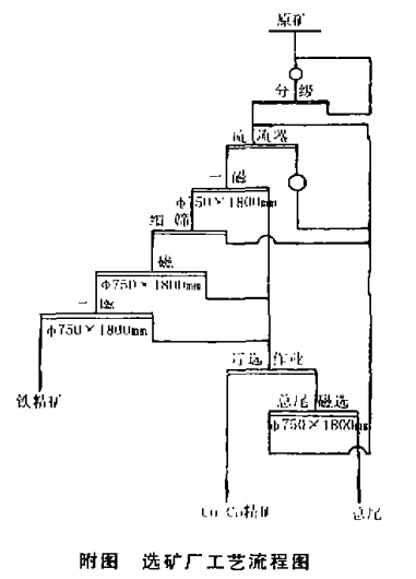
2.2、磁選工藝流程
萊蕪礦業有限公司選廠磁選工藝流程為三段磁選,細篩自循環(二個系列)。磁選后的尾礦進入浮選,浮選尾礦進總尾磁選機,總尾磁選后的精礦進二段分級旋流器,旋流器的溢流給入一段磁選機,旋流器的沉砂,返回二段球磨機再磨,見附圖。

為了進一步探明一段磁選機作業情況,進行了工藝流程考查,考查結果:臺時處理量為47.15t/h;尾礦品位為22.70%;作業回收率為88.95%。從以上考查數據來看,充分證實了前面所分析的問題是客觀存在的。
鑒于上述情況,提出了對一段磁選作業進行技術改造。在做了大量基礎工作的前提下,提出了采用φ1050mm×2400新型大筒徑永磁磁選機,取代原小筒徑φ750mm×1800mm舊式磁選機的初步方案。大筒徑的優點是:處理能力大,磁系結構先進,能較大程度改善作業指標,是較理想的粗選設備的**。
3、驗證
為了保證新設備完全滿足現場生產的需要,對φ1050mm×2400mm磁選機的生產能力進行了驗證。通過驗證,該磁選機的處理能力完全能滿足當前或今后一個時期的需要。φ1050mm×2400mm永磁磁選機技術性能見表1。

4、應用效果
4.1、選別作業指標對比
4.1.1、一段磁選作業改造前后對比,見表2。

從表中可以看出,在給礦條件基本相同的情況下,φ1050mm×2400mm永磁機的選別效果,明顯好于φ750mm×1800永磁機,尾礦品位降低7.28%,回收率提高4.18%。另外,一段作業環境得到很大改觀,作業負荷大大減輕,電機損壞次數為零(到目前為止),徹底杜絕了漾礦現象,同時對全工藝流程作業的改善發揮了重大作用。
4.1.2、工藝設備改造前后技術經濟指標對比
工藝設備改造前后技術經濟指標對比,見表3。

從表3可以看出,由于一段磁選作業的改造,對整個選礦工藝流程的作業產生了良好的效果,尾礦品位平均下降2.98%,回收率提高1.09%,球磨機處理能力有了很大的提高,保證了生產任務的完成??傊笸矎接来糯胚x機在粗選作業的應用是成功的,解決了選礦生產急需要解決的難題。
4.2、年經濟效益
本次技改總投資35萬元,投資折舊3.5萬元(折舊率10%),改造后新增產值104萬元,年創效益65.5萬元/a。
5、結束語
(1)φ1050永磁磁選機在粗選作業產生的效果顯著,較好地發揮了該設備的性能和作用,對提高產量,改善作業指標,提高選礦效益起到了重要作用。
(2)雖然大筒徑磁選機的取得了成功,但是,不幾回本身還是工藝上都還存在著不足,有待售后進一步完善和改進。